Online Architectural Services

Garage Conversion

Successful Garage Conversion Project in Ealing, London

Planning Application Services We Provide

Project Overview

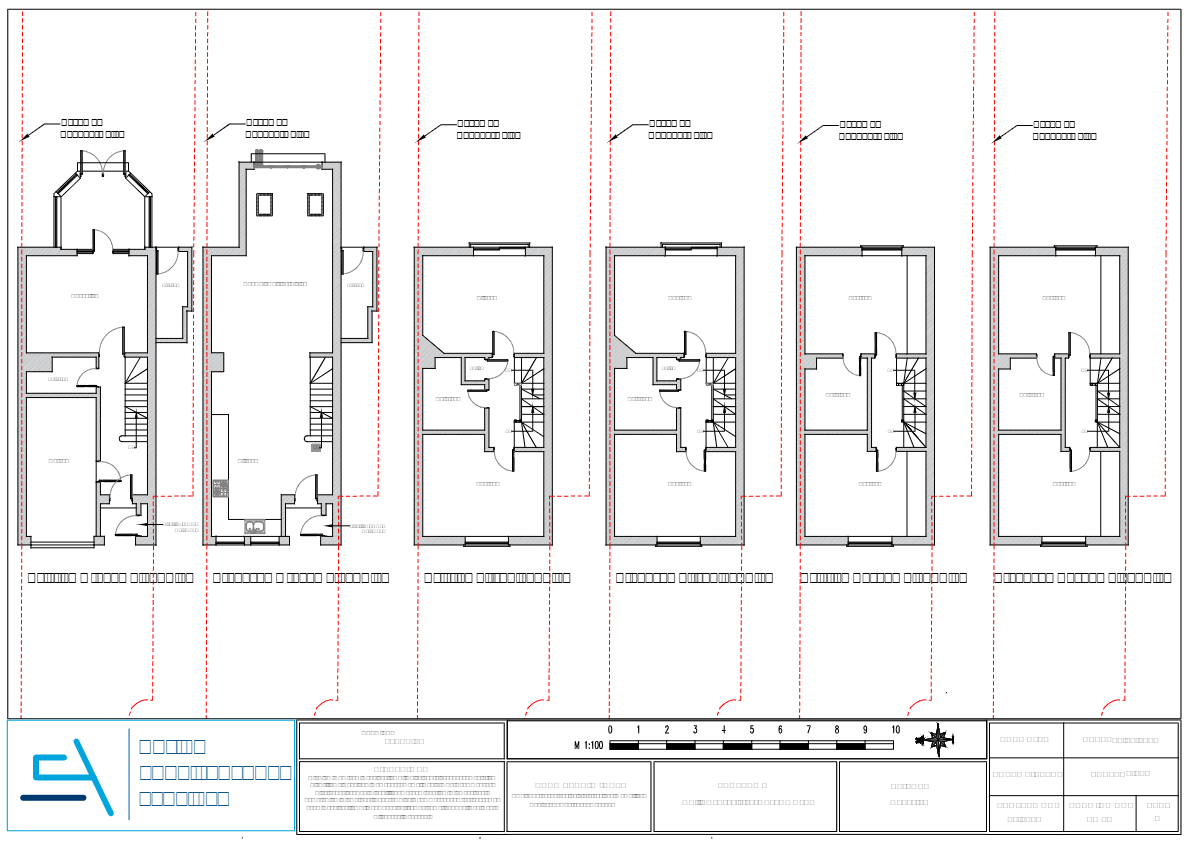
Welcome to our latest garage conversion project in Ealing, London. This comprehensive garage conversion project highlights our architectural expertise in transforming unused spaces into beautiful, highly functional living areas. Our client approached us with a clear vision: to maximize their property’s potential by converting an integrated garage into a fully habitable room, alongside adding a modern single-storey rear extension.

The Challenge & Scope Executing a seamless garage conversion project requires careful architectural planning. For this specific property, the scope first included the demolition of an existing, outdated conservatory to make way for a contemporary rear extension. A crucial element of this garage conversion project involved external alterations. We meticulously designed the insertion of two new front-facing windows in lieu of the original garage door opening. This thoughtful design ensures the new habitable room receives optimal natural light while maintaining a cohesive front elevation that perfectly complements the Ealing street scene.

Our Architectural Approach Navigating local planning policies is essential for any successful garage conversion project. Our team developed a robust, fully compliant architectural package. This included detailed existing and proposed floor plans, comprehensive elevations, precise sections, and a thorough Design and Access Statement to support the application.

The Outcome Thanks to our precise architectural documentation and strategic planning, this garage conversion project successfully secured “Full Approval Granted with Conditions” from the local planning authority. The final approved design delivers an optimized living space that adds significant functional and market value to the property.

Garage Conversion Project Decision

Related Services

Planning Application

Expert planning services for residential and commercial projects across London.

HMO Services

Complete HMO conversion services including licensing and compliance support.

Structural Calculations

Professional structural engineering services for all types of building projects.

Party Wall Services

Comprehensive party wall surveying and agreement services for London properties.